













Mas I _ Gordes, France
HV
design
Photos by HV
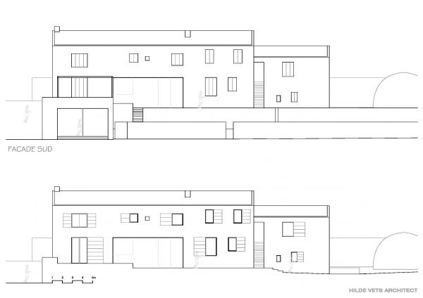
Main 'mas' (residence) on the property, conceived as a traditional 'mas de base' (long stretched building facing southwards) with contemporary detailing and plan.
For more information on 'mas': 'Maisons rurales et vie paysanne en Provence', Jean-Luc Massot, 2004 Actes Sud
Hoofdhuis (mas) op het domein, bedacht als een traditionele 'mas de base' (lang uitgerekt gebouw, dat zuidwaarts gericht is) met hedendaagse detaillering en plan.
